Eladó telek
80 szobás HOTEL építési engedéllyel Budapest frekventált helyén
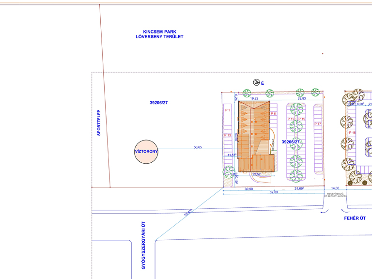
Az ingatlan Budapest legforgalmasabb és legfrekventáltabb közlekedési csomópontjától, az Örs Vezér tere végállomástól a metró oldalán Kőbánya irányában 350 méterre fekszik.
A telektől 350 méterre az út másik oldalán található az ország legnagyobb forgalmú Árkád bevásárlóközpontja, átellenben az ország elsőként felépült bevásárlóközpontja, a Sugár valamint az ország első IKEA áruháza.
A közelben több egyetem, főiskola működik.
A telekkel egy övezetben fekszik a Hungexpo Budapesti Vásárközpont, valamint a Kincsem Nemzeti Lóverseny Park, mely 88 zöldövezeti hektárával mögötte Európa fővárosai közül egyedülállóan nyújt lehetőséget a felépítendő hotel leendő vendégei számára a lovasturizmusra.
A telek egyedi adottságainak köszönhetően a hotelból teljes rálátás nyílik a lóversenypálya 88 hektáros zöldfelületére, valamint a távolabbi Gellért-hegyre, a budai hegyekre.
Az ingatlan
3725 m2 nagyságú telek. Fehér útra engedélyben megadott útcsatlakozás kialakítandó út veszi körbe az ingatlant - 840 m2 tulajdonos: Ficsór Autóház Kft.
Hotel építési engedély
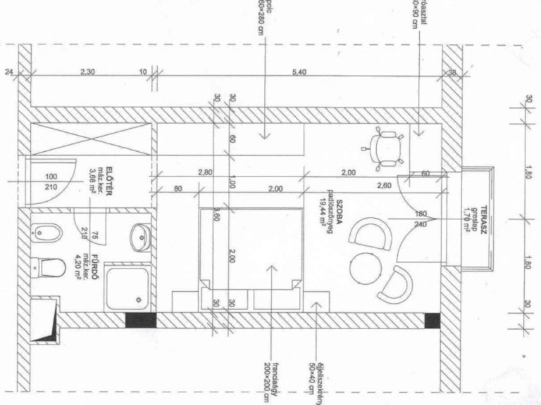
A hotel a jogerős engedélyezett tervdokumentáció szerint : 4 szintes + pinceszint + tetőtér 80 szobás két konferencia teremmel nagy előtér bárral külön wellness rész szintenként három mozgáskorlátozottak számára kialakított szoba 99 parkolóhely (felszíni + garázs) jogerős építési engedély már földmunkával megkezdett építkezés
Kapcsolat
Vegye fel velünk telefonon a kapcsolatot vagy keressen fel minket személyesen egy előre egyeztetett időpontban!


















